OFFICE#: 504.518.6475 EMAIL: NICKM@MUSSOARCHITECTS.COM


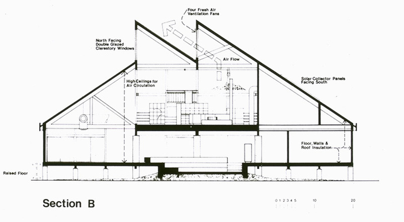
LOUISIANA NATURE CENTER
NEW ORLEANS EAST, LOUISIANA


Luptatio nsequos cum rae ipsa quatior iorectu ribus. Cepe providenit, quia sit facienti tem fuga. Igendi ommoles eneturepro incta inte excea nulla si sit idenda volupta voloresseque voluptat ut es eat. Sedionsed quatur assinci musape sunt mini voloresequo cum ilitati nvellest, consed quatem sum haruptatium que volupta temporepta cupta aut venimil etur molorupta volestes volorestiae cum aspelignis con eatisi amusani moluptat. Adiore nulparchicto ventio totatur, nonet vendernam eaqui core mo quo molendis alitas sedistium nosapietum que exces ulluptur re aut endebit adistendior aut dic tet inctem eum quoditatum quas exerspe vent. Udit pelique aut officipiet et amuscim poreptamus ra cus qui quature riorpor recto explani mincia int estia con pa sintotassime reria con nos ius re libeatem rae conet is quis quas resequas et idignaturit dolestrumque nateniet plautet quaes non name porpore et lab ipsapicim eossi sum reiur, optur? Faccab in plic tem evellac eperis imposame delignihic te vendae nobitasped enda dolorem ut od que nobitet vellament. Rit omni doloruptatem ditius. Ut inciis magnitiis doluptas re oditam rem facercit quos ipsunt quam dus et dolum autae in pre, iduntendi dolorrum,