OFFICE#: 504.518.6475 EMAIL: NICKM@MUSSOARCHITECTS.COM
DILLARD UNIVERSITY
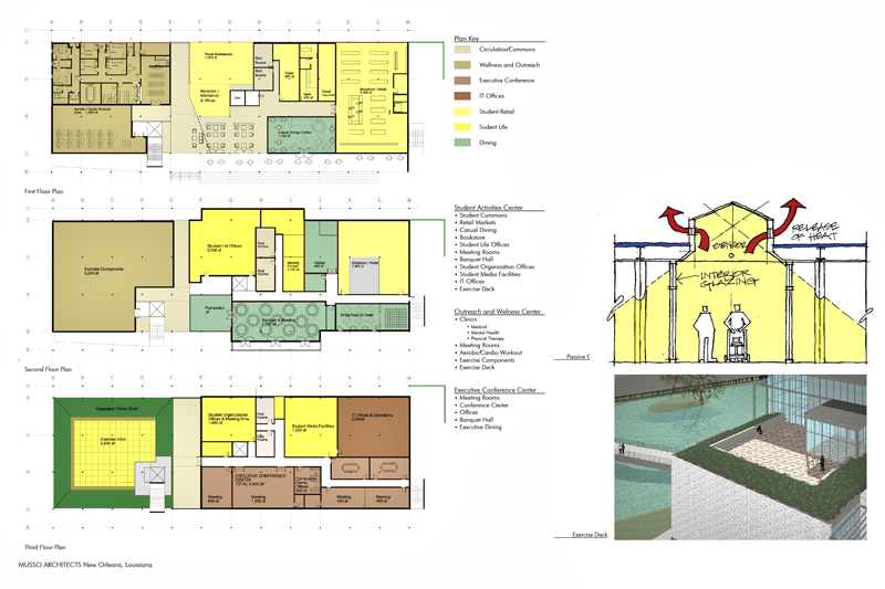
UNIVERSITY CENTER*
NEW ORLEANS, LOUISIANA
INITIAL PLANNING AND PROGRAMMING STUDIES FOR THE DILLARD UNIVERSITY UNIVERSITY CENTER WERE PROVIDED BY MUSSO ARCHITECTS.
BACK TO INSTITUTIONAL
FEATURED PROJECTS GRID